How to Find Four Bar Cottages
Four Bar Cottages is located in southeastern Arizona, five miles from the town of Portal and one mile from the Arizona/New Mexico state line.
121 W. Portal Road, Portal, AZ 85632
(520) 558-2580
fourbarcottages@hotmail.com
GPS Coordinates: 31.876541, -109.062145
Directions
From I-10
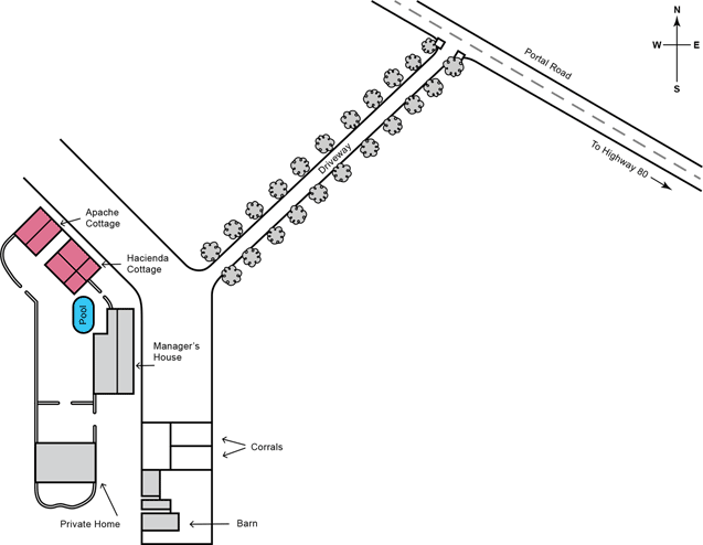
Take New Mexico exit 5 at Roadforks and follow Highway 80 south for 27.4 miles. Turn right on Portal Road (NM 533) and follow it for ¾ mile to the Arizona state line. Here, it crosses a cattle guard and angles to right. Continue another 0.9 mile. Look for the white fence along the left side of the road. Turn here down the long driveway lined with trees to Four Bar Cottages.
Please note that if traveling on I-10 from the west, you may notice a sign for Portal at the second San Simon exit, 17 miles before reaching Roadforks. While it is possible to take this route, it involves more than 15 miles of often rough dirt road and does not save driving time.
From Douglas
Take Highway 80 north out of town for 50 miles before reaching Rodeo, New Mexico just across the New Mexico state line. Pass through town and continue another 2 miles to Portal Road (NM 533). Turn left and follow it for ¾ mile to the Arizona state line. Here, it crosses a cattle guard and angles to right. Continue another 0.9 mile. Look for the white fence along the left side of the road. Turn here down the long driveway lined with trees to Four Bar Cottages.
